Дизайн проект офисного помещения АО «РОСАГРОЛИЗИНГ»

Дизайн офиса компании «РОСАГРОЛИЗИНГ» выполнен в современном стиле.

Для помещения используется нейтральная цветовая палитра с акцентами. Доминируют белый, серый, коричневый и древесные тона, которые дополнены ярким зеленым цветом коврового покрытия и стеновых панелей. Зеленый цвет успокаивает, снижает усталость и помогает концентрировать внимание.

Материалы

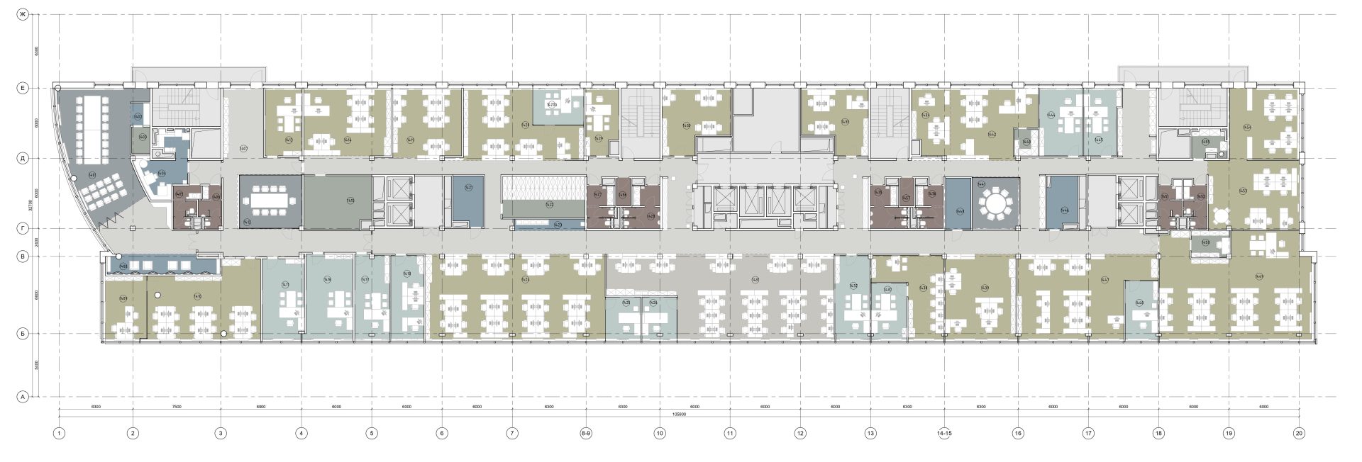
План

Визуализации

Оставьте заявку на консультацию для ускорения
решения вашего вопроса