Проект офисного помещения и клиентского отделения компании «ГазпромБанк»

Дизайн помещений для компании «ГазпромБанк» выполнен в современном
ключе, с акцентом на функциональность и комфорт. В дизайне интерьера
используются яркие контрастные цвета — насыщенный синий и оранжевый.
Синие шторы и мягкий диван создают уютную зону отдыха, а оранжевые стулья
добавляют энергии. Применяются натуральные текстуры, например, деревянные
панели.

Материалы

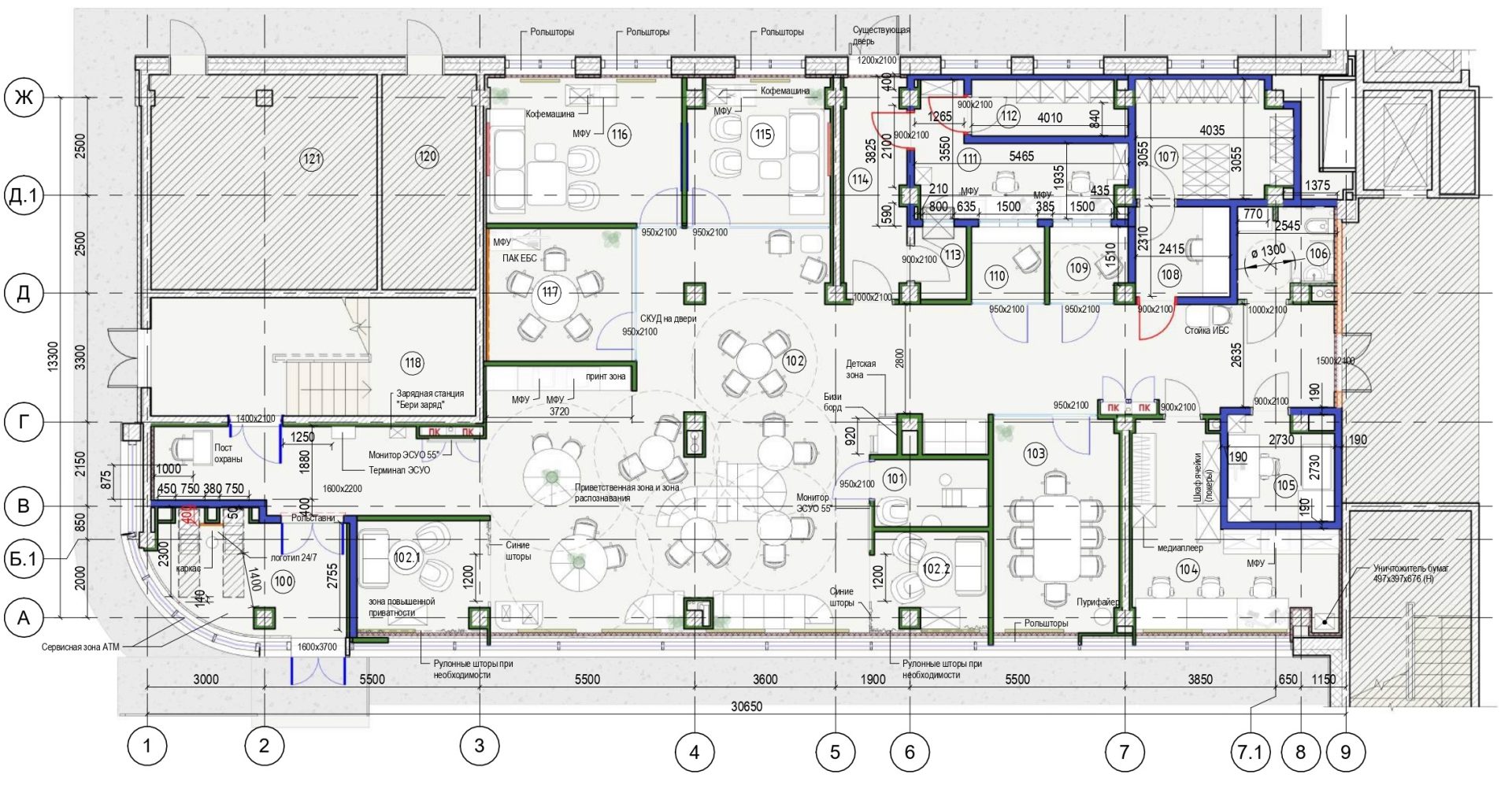
План 1 этаж

План 2 этаж

План 3 этаж

План 4 этаж

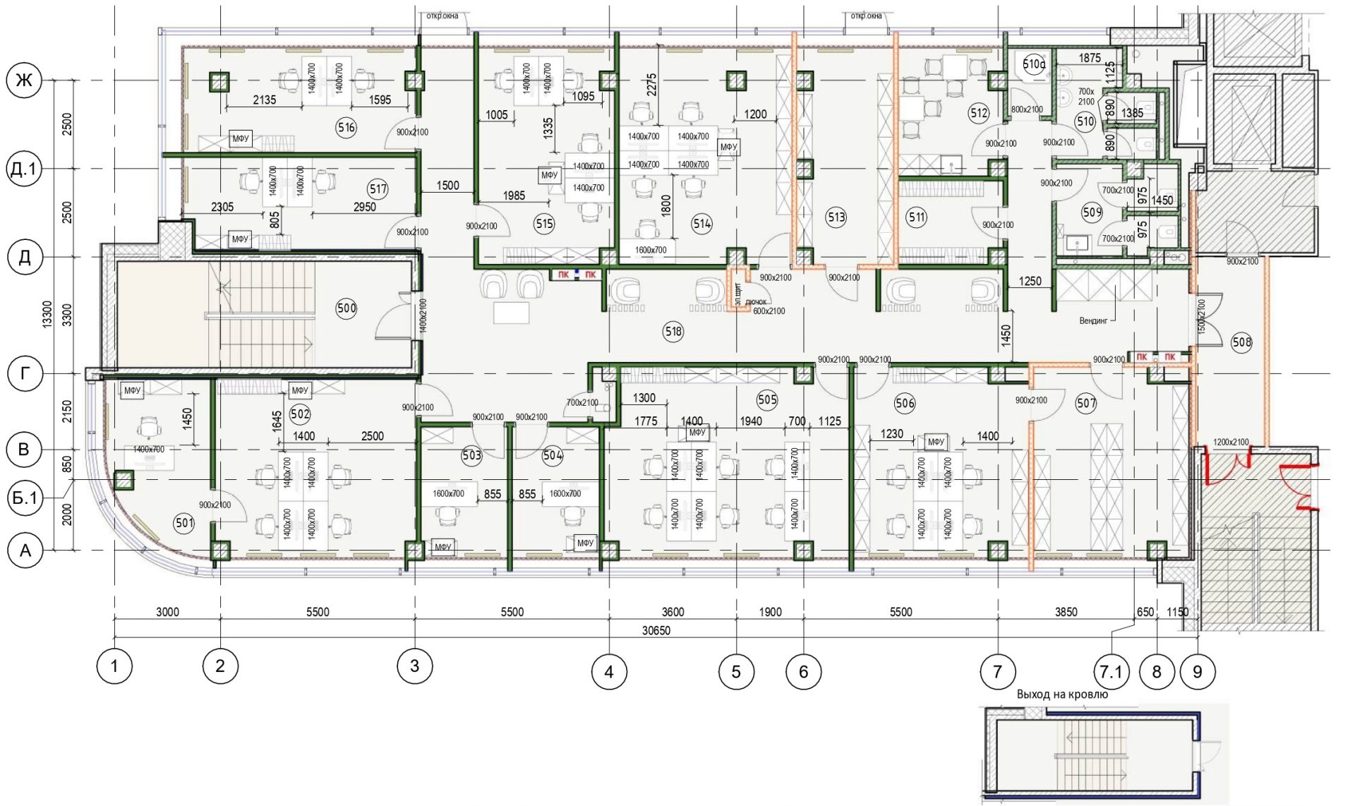
План 5 этаж

Фотографии

Оставьте заявку на консультацию для ускорения
решения вашего вопроса