Проект офисного помещения компании «ГазпромБанк»

Дизайн офиса компании «ГазпромБанк» выполнен в современном и функциональном стиле. Он сочетает в себе чистые линии, нейтральную цветовую палитру и элементы минимализма, создавая рабочую атмосферу офиса, способствующую концентрации.

Ярким акцентом дизайна служат элементы синего, оранжевого и голубого цвета, которые добавляют динамики и свежести в пространство.

Материалы

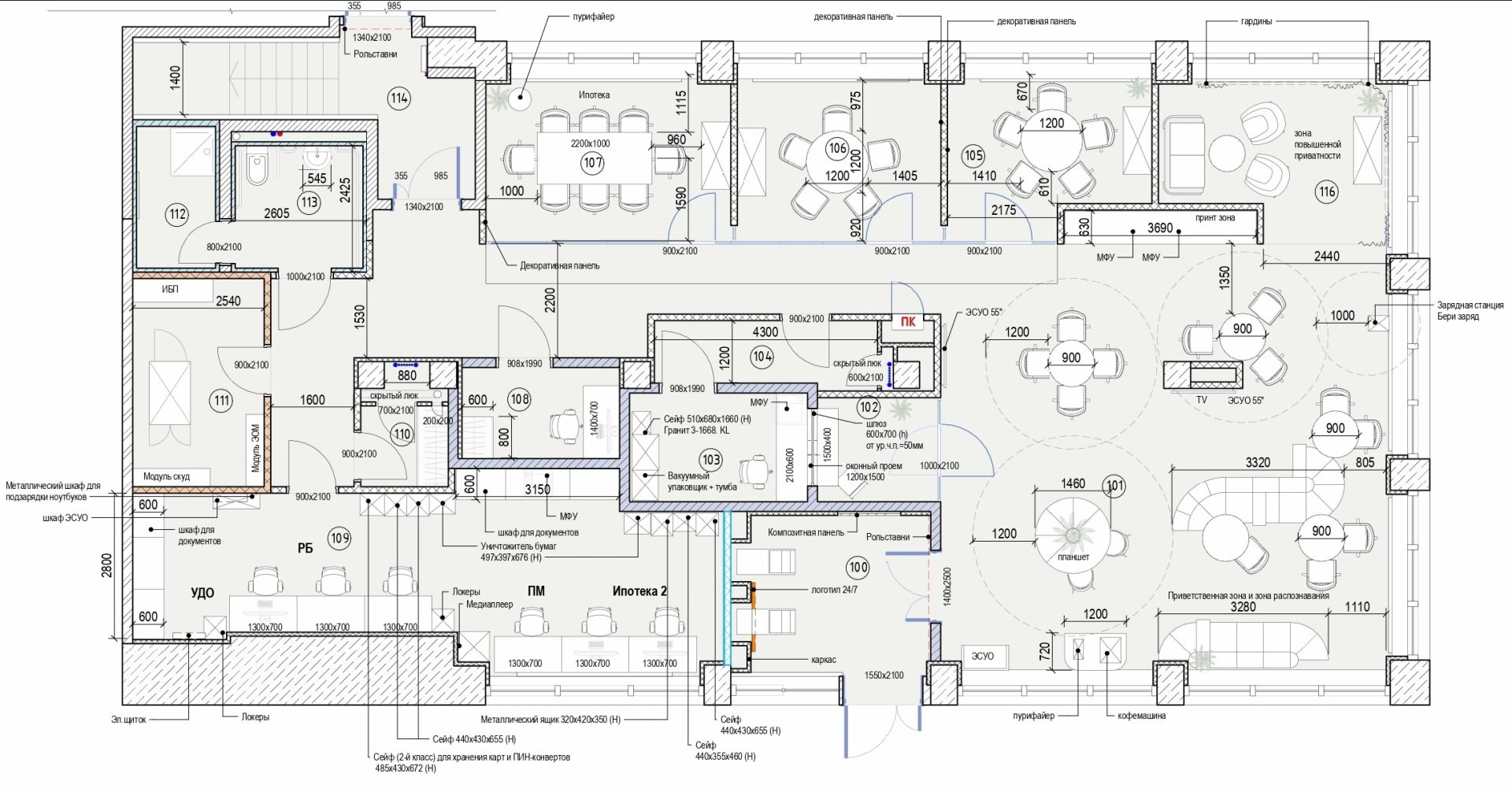
План 1 этаж

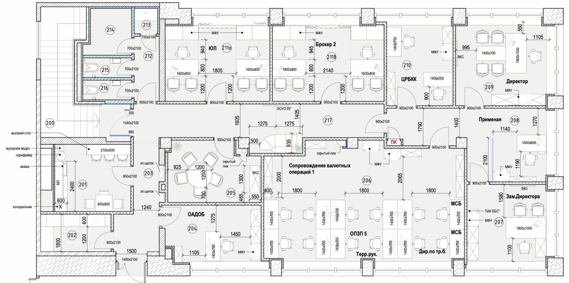
План 2 этаж

Аксонометрия 1 этаж

Аксонометрия 2 этаж

Фотографии

Оставьте заявку на консультацию для ускорения
решения вашего вопроса