Проект ресторана «БАНЕГА»

Дизайн интерьера ресторана «БАНЕГА» был выполнен в популярном сейчас рустикальном стиле. Этот стиль характеризуется использованием натуральных материалов, таких как необработанный камень, дерево и плетеные элементы, создавая уютную и естественную атмосферу.

В дизайне помещения преобладают белая текстурированная штукатурка или камень на стене и массивная деревянная мебель. Потолок украшен видимыми деревянными балками, что является ключевой чертой рустикального стиля. Дизайнеры вдохновлялись природой Мальдив и Индонезии.

Вдохновение

Материалы

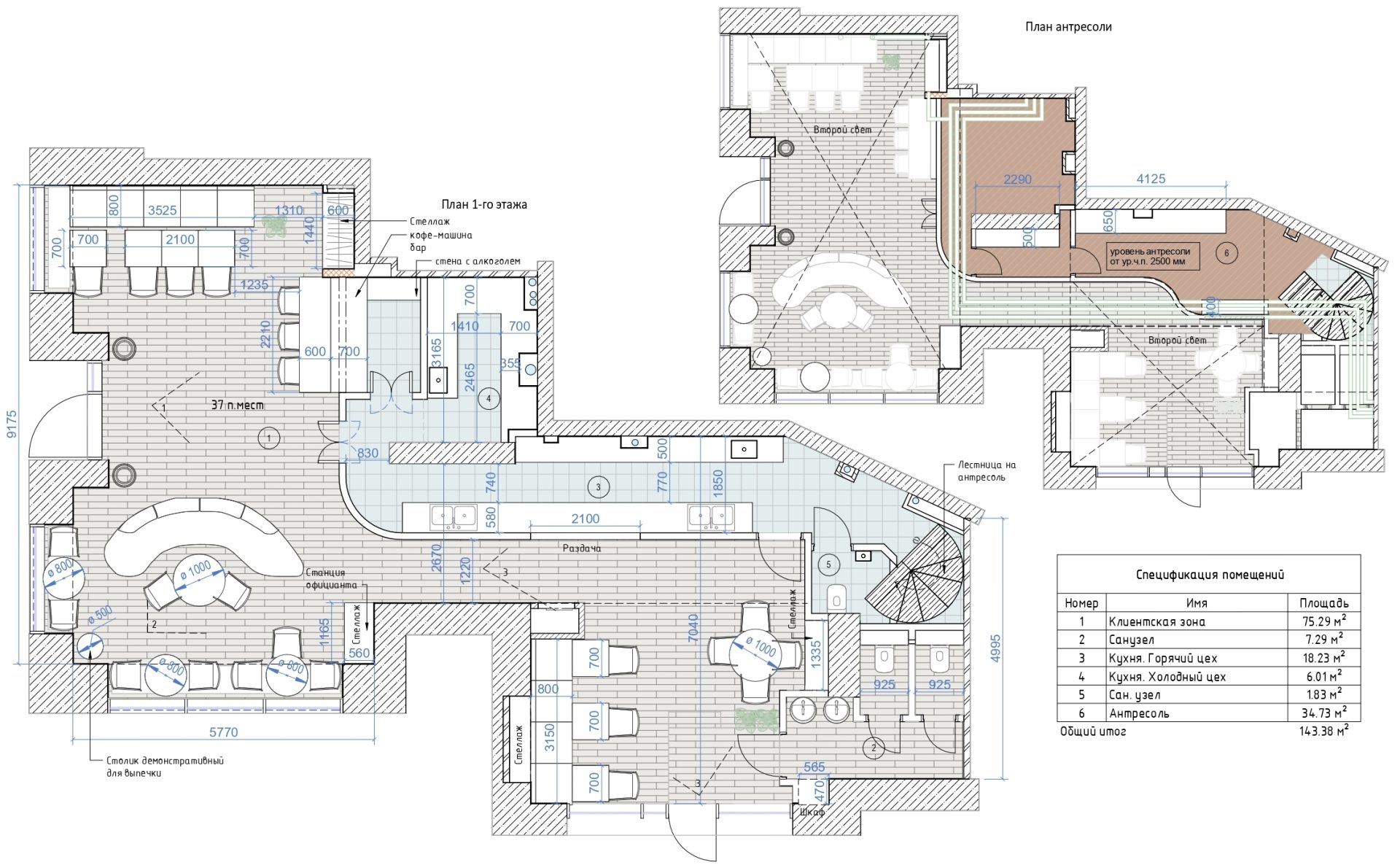
План

Исходная ситуация

Фотографии

Визуализация

Процесс реализации

Оставьте заявку на консультацию для ускорения
решения вашего вопроса